Page 258 - سابقة أعمال ايجي ريفيت السكني
P. 258

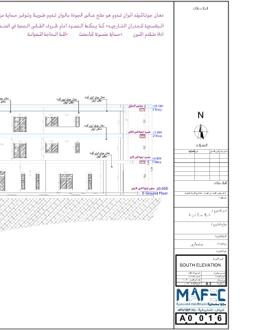
+10.500                              +10.500
 3 Story                              3 Story
                                                 N
 +7.200                               +7.200
 2 Story                              2 Story

 +3.900                               +3.900
 1 Story                              1 Story

                                       ±0.000
                                   0 Ground Floor




  SOUTH ELEVATION



                                             SOUTH ELEVATION
                                                   A 3



                                            A 0   0  1  6
   253   254   255   256   257   258   259   260   261   262   263