Page 259 - سابقة أعمال ايجي ريفيت السكني
P. 259

N
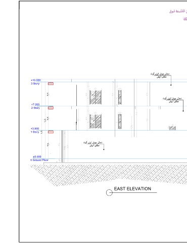
           +10.500                                                                                 +10.500
           3 Story                                                                                 3 Story


           +7.200                                                                                  +7.200
           2 Story                                                                                 2 Story


           +3.900                                                                                 +3.900
           1 Story                                                                                1 Story



            ±0.000                                                                                ±0.000
           0 Ground Floor                                                                     0 Ground Floor



                                      EAST ELEVATION
                                                                                                          EAST ELEVATION
                                                                                                                A 3



                                                                                                         A 0   0  1  7
   254   255   256   257   258   259   260   261   262   263   264