Page 264 - سابقة أعمال ايجي ريفيت السكني
P. 264
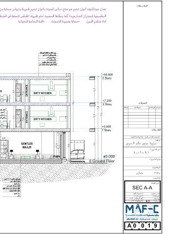
+10.500 +10.500
3 Story 3 Story
DINING DINING ENTRANCE
DIRTY KITCHEN DIRTY KITCHEN
+7.200 +7.200
2 Story 2 Story
ENTRANCE DINING DINING ENTRANCE
DIRTY KITCHEN DIRTY KITCHEN
+3.900 +3.900
1 Story 1 Story
PORCH GUEST ROOM
BATH MEDIA SEAT GENTLES
MAJLIS
±0.000 ±0.000
0 Ground Floor 0 Ground Floor
SEC A-A
SEC A-A
A 3
A 0 0 1 9

