Page 266 - سابقة أعمال ايجي ريفيت السكني
P. 266

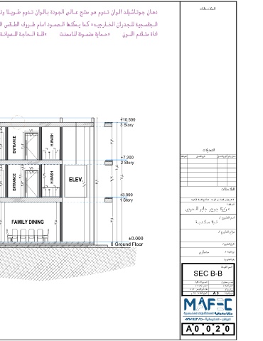
+10.500                     +10.500
 3 Story                     3 Story
 MASTER BED ROOM
 DINING      H.WASH
 ENTRANCE  ENTRANCE
 +7.200                      +7.200
 2 Story                     2 Story
 MASTER BED ROOM
 DINING      H.WASH  ELEV.
 ENTRANCE  ENTRANCE
 +3.900                      +3.900
 1 Story                     1 Story

 FAMILY  FAMILY DINING
 MAJLIS
 0 Ground Floor                ±0.000
                           0 Ground Floor


                                              SEC B-B
 SEC B-B
                                                   A 3



                                            A 0   0  2  0
   261   262   263   264   265   266   267   268   269   270   271