Page 587 - سابقة أعمال ايجي ريفيت السكني
P. 587
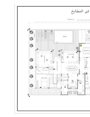
MATV SOCKET
TELEPHONE SOCKET-RJ11
DATA SOCKET -RJ45
ACCESS POINT FOR WIFI
ST 20.00 m
CCTV (IP CAMERA OUTDOOR - BULLET)
West Elevation Without fence
HEAT DETECTOR
H
West Elevation
HEAT DETECTOR
G
2 1
FIRE INDOOR SIREN
GARDEN
FIRE OUTDOOR SIREN
out
POOL
GARDEN
MANUAL CALL POINT
CAR PORT
out Intercom Main Unit
Intercom Unit
out GUEST DINING BUFFET SEAT GARDEN South Elevation
MEDIA SEAT
2 1
2 1
TV 70"
LADIES MAJLIS
GENTLES ENTRANCE
ENTRANCE
DECORATIVE TABLE
FAMILY ENTRANCE
H.WASH
BATH
ABAYA
DOWN
DOWN UP UP FAMILY DINING PORTRAIT GENTLES MAJLIS
25 25 2 2 ST 15.00 m
24 24 3 3
23 23 4 4 ELEV. G
22 22 5 5 H.WASH
BED ROOM
21 21 6 6 23G x 0.28 23G x 0.28 24R x 0.16 24R x 0.16
20 20 7 7
19 19 8 8 H G
18 18 9 9 KITCHEN OPEN KITCHEN DIRTY H
17 17 10 10
16 16 11 11
15 15 14 14 13 13 12 12 BATH
out GARDEN
H STORE
A 3
E 0 1 0

