Page 583 - سابقة أعمال ايجي ريفيت السكني
P. 583
POWER LEGEND :
1Ø/240V, 50HZ, SP+N FUSED ISOLATING SWITCH.
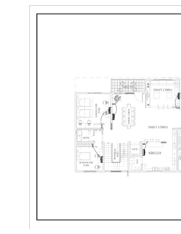
F-ACU/5 BALCONEY TV 70" FAMILY LIVING BATH CLOSET West Elevation Without Fence FEMALE BED ROOM FIRST FLOOR
F-ACU/1
F-ACU/3
MALE
BED ROOM #1
F-ACU/6 FAMILY DINING FAMILY LIVING PORTRAIT CORRIDOR DISTRIBUTION ENTRANCE PORTRAIT BALCONY
BATH CLOSET MASTER BED ROOM
F-ACU/4
DOWN
DOWN UP UP
25 25 2 2
F-ACU/7 24 24 3 3
23 23 4 4 ELEV. 309.176 m
22 22 5 5
21 21 6 6 23G x 0.28 23G x 0.28 24R x 0.16 24R x 0.16 KITCHEN
20 20 TO BELOW OPEN 7 7
19 19 8 8 MIRROR 2
18 18 9 9
17 17 10 10
16 16 11 11 STO.
15 15 14 14 13 13 12 12 BATH
BED ROOM #2
MALE
F-ACU/2
A 3
E 0 0 8

