Page 581 - سابقة أعمال ايجي ريفيت السكني
P. 581
POWER LEGEND :
1Ø/240V, 50HZ, SP+N FUSED ISOLATING SWITCH.
ST 20.00 m
West Elevation Without fence
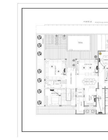
2 1 GARDEN West Elevation CAR PORT
POOL
GARDEN
GUEST DINING
BUFFET
MEDIA SEAT
G-ACU/1 SEAT GARDEN South Elevation
G-ACU/2
2 1 2 1
TV 70"
G-ACU/5
G-ACU/7 FAMILY ENTRANCE DECORATIVE TABLE ENTRANCE GENTLES ENTRANCE
LADIES MAJLIS
FAMILY DINING
G-ACU/3
H.WASH
BATH
PORTRAIT
ABAYA
DOWN
DOWN UP UP GENTLES MAJLIS
25 25 2 2 ST 15.00 m
24 24 3 3
23 23 4 4 ELEV.
22 22 5 5 H.WASH
BED ROOM
21 21 6 6 23G x 0.28 23G x 0.28 24R x 0.16 24R x 0.16
G-ACU/8 G-ACU/6
20 20 7 7
19 19 8 8
18 18 9 9 KITCHEN OPEN KITCHEN G-ACU/4 DIRTY
17 17 10 10
16 16 11 11
15 15 14 14 13 13 12 12 STORE BATH GARDEN
A 3
E 0 0 7

