Page 577 - سابقة أعمال ايجي ريفيت السكني
P. 577
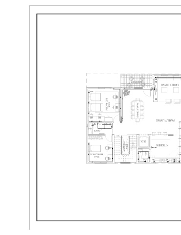
POWER LEGEND :
16A/230V WALL MOUNTED SINGLE SOCKET-40cm high
20A/230V WALL MOUNTED SINGLE SOCKET WP-120cm high
WP
16A/230V WALL MOUNTED DUPLEX SOCKET 40 cm high.
WP 20A/230V WALL MOUNTED Power Socket - 120 cm high
20A/230V Single Socket for TV - 150 cm high
TV
20A/230V Single Socket for Exhausted Fan - 270 cm high
EX.FAN
Power Socket for Water Heater - 270 cm high
WH
FIRST FLOOR
WP West Elevation Without Fence
BALCONEY
BATH
F- WH/1 FEMALE BED ROOM
FAMILY LIVING
WH EX.FAN
F- NS/9 TV TV 70"
F- NS/10 CLOSET
F- NS/1
F- NS/2
F- NS/7 CORRIDOR WP
MALE
BED ROOM #1
FAMILY DINING
F- NS/4 DISTRIBUTION ENTRANCE F- NS/3 PORTRAIT WP BALCONY
PORTRAIT
FAMILY LIVING
EX.FAN
TV
WH
F- WH/4 F- NS/5
WP WP
F- PS/1 BED ROOM
BATH CLOSET MASTER
DOWN
DOWN UP UP
25 25 2 2 WP
F- PS/2
24 24 3 3
23 23 4 4 ELEV. 309.176 m
22 22 5 5 EX.FAN
WH
21 21 6 6 23G x 0.28 23G x 0.28 24R x 0.16 24R x 0.16 F- WH/2
20 20 KITCHEN WP F- NS/6
F- NS/11 TO BELOW OPEN 7 7 WH F- WH/3 F- PS/3 MIRROR 2
19 19 8 8
18 18 9 9
17 17 10 10
16 16 11 11 WP STO. F- PS/4 WP
15 15 14 14 13 13 12 12 BATH
BED ROOM #2
EX.FAN F- PS/5
MALE
F- PS/8 F- PS/7 F- PS/6
F- NS/8
WP
WP WP WP WP WP
EX.FAN
A 3
E 0 0 5

