Page 575 - سابقة أعمال ايجي ريفيت السكني
P. 575
POWER LEGEND :
16A/230V WALL MOUNTED SINGLE SOCKET-40cm high
20A/230V WALL MOUNTED SINGLE SOCKET WP-120cm high
WP
16A/230V WALL MOUNTED DUPLEX SOCKET 40 cm high.
WP 20A/230V WALL MOUNTED Power Socket - 120 cm high
20A/230V Single Socket for TV - 150 cm high
ST 20.00 m
West Elevation Without fence
TV
20A/230V Single Socket for Exhausted Fan - 270 cm high
EX.FAN
Power Socket for Water Heater - 270 cm high
WH
West Elevation
2 1
WP
WP
WP
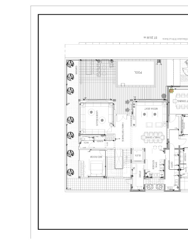
P - H1 P - M1 GARDEN
WP
POOL
GARDEN
WP
WP WP WP CAR PORT
WH O- NS/2 WP
G- WH/1 WP GARDEN
G- PS/1
O- NS/3
O- NS/4
WP WP WP WP G- PS/2 WP South Elevation
WP SEAT
G- PS/3
GUEST DINING
O- NS/5 WP
BUFFET
MEDIA SEAT
G- PS/4 WP
G- NS/1
G- NS/2
WP
TV
EX.FAN
2 1
2 1
TV 70"
G- NS/8 DECORATIVE TABLE ENTRANCE
WP
LADIES MAJLIS
G- NS/5 GENTLES ENTRANCE
G- NS/3
G- WH/5 WH FAMILY DINING G- NS/4
G- NS/9
WP H.WASH WP PORTRAIT
FAMILY ENTRANCE
BATH
EX.FAN
WP
WP
ABAYA
DOWN DOWN
UP
UP
G- NS/6 GENTLES MAJLIS
25 25 2 2 WP ST 15.00 m
G- NS/10
24 24 3 3
23 23 4 4 ELEV. G- PS/5 WP
22 22 5 5
BED ROOM
21 21 6 6 23G x 0.28 23G x 0.28 24R x 0.16 24R x 0.16 H.WASH
20 20 7 7
19 19 8 8
18 18 9 9 KITCHEN G- PS/9 WP KITCHEN WP
G- PS/6
WP
17 17 10 10
G- NS/7
OPEN
DIRTY
16 16 11 11
15 15 14 14 13 13 12 12 WP G- PS/10 WP EX.FAN EX.FAN BATH
G- WH/4
WH G- WH/2 WP GARDEN
G- PS/12 G- PS/11 WP WH
G- PS/7
EX.FAN
EX.FAN WP WP
STORE
O- NS/1 WP
WP
WP
G- WH/3
WP
WH
O- NS/6
WP
WP WP G- PS/8 WP
A 3
E 0 0 4

