Page 579 - سابقة أعمال ايجي ريفيت السكني
P. 579
POWER LEGEND :
16A/230V WALL MOUNTED SINGLE SOCKET-40cm high
20A/230V WALL MOUNTED SINGLE SOCKET WP-120cm high
WP
16A/230V WALL MOUNTED DUPLEX SOCKET 40 cm high.
WP 20A/230V WALL MOUNTED Power Socket - 120 cm high
20A/230V Single Socket for TV - 150 cm high
TV
20A/230V Single Socket for Exhausted Fan - 270 cm high
EX.FAN
Power Socket for Water Heater - 270 cm high
WH
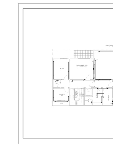
ROOF FLOOR
WP WP West Elevation Without Fence WP
R- NS/1
R- NS/2 WP
R- NS/7 WP
R- NS/6
GENTLES MAJLIS
TV
GYM
ROOF
WP
WP WP
WH EX.FAN
R- NS/5
R- WH/3
R- NS/8
WP BATH
DOWN UP WP R- NS/3
WP
25 2 WP
R- NS/4
24 3
23 4 ELEV.
22 5
21 6 23G x 0.28 24R x 0.16
20 TO BELOW OPEN 7 STORE
BED ROOM #2
19 8 EX.FAN
MALE
18 9 WP WH R- WH/1
17 10 LAUND.
16 11
15 14 13 12 BATH WP
R- WH/2 R- PS/1 WP
WH WP
WP
WP
EX.FAN
ROOF
R- PS/2 WP
WP WP
A 3
E 0 0 6

