Page 830 - سابقة أعمال ايجي ريفيت السكني
P. 830
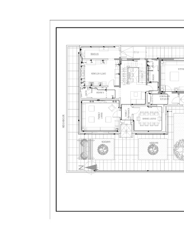
POWER LEGEND :
16A/230V WALL MOUNTED SINGLE SOCKET-40cm high
20A/230V WALL MOUNTED SINGLE SOCKET WP-120cm high
WP
16A/230V WALL MOUNTED DUPLEX SOCKET 40 cm high.
NEIGHBOUR
20A/230V WALL MOUNTED Power Socket - 120 cm high
WP
WP
WP
WP
20A/230V Single Socket for TV - 150 cm high
TV
EX.FAN
WP 1G x 2.00 UP 20A/230V Single Socket for Exhausted Fan - 270 cm high
DOWN 2R x 0.15 EX.FAN
WP
STORE
Power Socket for Water Heater - 270 cm high
2 1 WH
WP WP
WP
G- NS/4 O- WH/1 WH
WP
G- NS/5 G-PS/4 G-PS/3 WH G- WH/1 G- NS/1 WP
EX.FAN
WP
G-PS/2
G-PS/5 EX.FAN G- NS/2 BATH
16 15 14 13 12 11 10
WP
17
9 GENTLES MAJLIS
8 EX.FAN
18
DINING 21 5 25R x 0.15 24G x 0.28 GENTLES MAJLIS
WP 19 7
G-PS/1 20 6
DIRTY KITCHEN
G-PS/6 22 4 H.WASH
23
3 WP
WP
G- WH/2 24 2 WP
WH G-PS/7 G-PS/8 G-PS/9 UP
1
25
WP WP WP DOWN O- NS/1
EX.FAN
WH
G- WH/3 WP O- NS/2 WP O- NS/3
BATH H.WASH 2
G- NS/6 ENTRANCE 1
ENTRANCE DECORATIVE TABLE GENTLES DOWN 1G x 0.90
TV TV 70" 2R x 0.15 UP
G- NS/3 WP O- NS/4 2 1
ENTRANCE
FAMILY
NEIGHBOUR WP FAMILY LIVING DOWN GUEST DINING
G- NS/7
2R x 0.15 1G x 1.00 2 ST 16.00 m
O- NS/5 WP WP GARDEN
WP
WP
1
GROUND FLOOR
UP GARDEN CAR PORT
GARDEN
2 1
N
WP O- NS/6 WP NEIGHBOUR WP
A 3
E 0 0 8

