Page 832 - سابقة أعمال ايجي ريفيت السكني
P. 832
POWER LEGEND :
16A/230V WALL MOUNTED SINGLE SOCKET-40cm high
20A/230V WALL MOUNTED SINGLE SOCKET WP-120cm high
WP
16A/230V WALL MOUNTED DUPLEX SOCKET 40 cm high.
20A/230V WALL MOUNTED Power Socket - 120 cm high
WP
20A/230V Single Socket for TV - 150 cm high
TV
20A/230V Single Socket for Exhausted Fan - 270 cm high
EX.FAN
Power Socket for Water Heater - 270 cm high
WH
F- NS/4 F- NS/2
16 15 14 13 12 11 F- NS/1
10 F- WH/1 WH
17
9 8 EX.FAN BATH
18
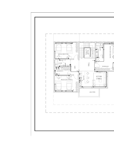
OPEN TO BELOW 7 6 5 24R x 0.16 23G x 0.28 MASTER BED ROOM
19
20
21
22
MALE BED ROOM
23
3 4
2
24
F- NS/5 DOWN 25 UP WP
WH
F- WH/3 F- NS/3
BATH
WP HALL TV
DIST. BALCONY
EX.FAN ENTRANCE
F-PS/5 WP F-PS/4 WP
F- NS/6
EX.FAN
LAUNDARY
TV
F- WH/4 F-PS/1 TV 70"
WH WP
F- NS/7 MAJLIS
F-PS/2 BUFFET FAMILY
WP
FEMALE BED ROOM
WH F- WH/2
F-PS/3
WP
EX.FAN
F- NS/8 BALCONY
FIRST FLOOR
A 3
E 0 0 9

