Page 851 - سابقة أعمال ايجي ريفيت السكني
P. 851
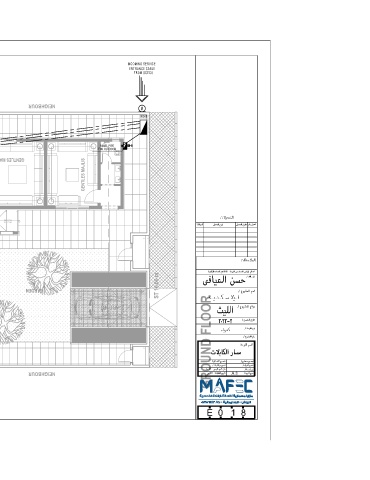
INCOMING SERVICE
ENTRANCE CABLE
FROM SCECO
M
NEIGHBOUR
MDB
DOWN 1G x 2.00 2R x 0.15 UP
PANEL PIPE
STORE
2 FOR GROUND FLOOR 1
PANEL PIPE
BATH FOR OUTDOOR
16 15 14 13 12 11
10
17
9 GENTLES MAJLIS
18
8 7
DINING 21 20 22 6 5 25R x 0.15 24G x 0.28 GENTLES MAJLIS
19
DIRTY KITCHEN
23
3 4 H.WASH
24
2
UP
25
1
DOWN
BATH H.WASH 2 1
ENTRANCE DECORATIVE TABLE GENTLES ENTRANCE DOWN 1G x 0.90 2R x 0.15 UP 2 1
TV 70"
NEIGHBOUR FAMILY LIVING DOWN FAMILY ENTRANCE GUEST DINING
2R x 0.15 1G x 1.00 2 GARDEN ST 16.00 m
GROUND FLOOR
1
UP GARDEN CAR PORT
GARDEN
2 1
N NEIGHBOUR A 3
E 0 1 8

