Page 852 - سابقة أعمال ايجي ريفيت السكني
P. 852

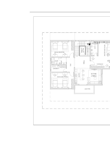
PANEL PIPE
                                                    FOR FIRST FLOOR
                                             16  15  14  13  12  11  10
                                                 9 8  BATH
                                             17
                                             18
                                               OPEN TO  BELOW  7 6 5  24R x 0.16  23G x 0.28  MASTER BED ROOM
                                             19
                                             20
                                             21
                                             22
                                     MALE BED ROOM
                                             23
                                                 3 4
                                                 2
                                             24
                                                  UP
                                             25
                                            DOWN
                                                HALL
                                 BATH
                                         DIST.            ENTRANCE  BALCONY
                                  LAUNDARY
                                             BUFFET   TV 70"  MAJLIS  FAMILY
                                       FEMALE BED ROOM
                                                                                            FIRST FLOOR
                                                   BALCONY
                                                                                                     A 3
                                                                                                E  0   1  9
   847   848   849   850   851   852   853   854   855   856   857