Page 878 - سابقة أعمال ايجي ريفيت السكني
P. 878
co2
DP
DOWN 1G x 2.00 2R x 0.15 UP NEIGHBOUR
STORE
2 1
DP
co2
16 15 14 13 12 11 BATH
10
9
17
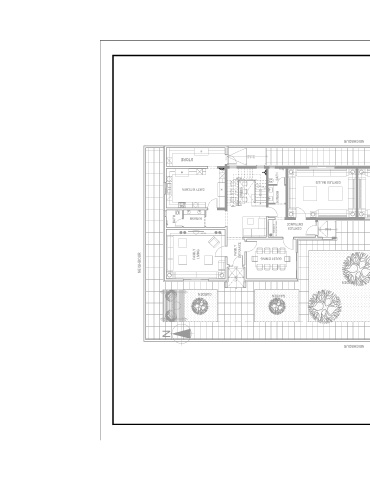
18 GENTLES MAJLIS
8 7
DINING 20 21 6 5 25R x 0.15 24G x 0.28 GENTLES MAJLIS FIRE EXTINGUISHER MOUNT
19
DIRTY KITCHEN
22
3 4 H.WASH
23
2
24
25 UP
1
DOWN
BATH H.WASH ENTRANCE 2 1
ENTRANCE DECORATIVE TABLE GENTLES DOWN 1G x 0.90 2R x 0.15 UP 2 1
TV 70"
NEIGHBOUR FAMILY LIVING DOWN FAMILY ENTRANCE GUEST DINING
2R x 0.15 1G x 1.00 2 GARDEN ST 16.00 m
GROUND FLOOR
1
UP GARDEN CAR PORT
GARDEN
2 1
N NEIGHBOUR
PORTABLETYPE
A 3
M 0 0 1

