Page 880 - سابقة أعمال ايجي ريفيت السكني
P. 880
co2
DP
co2
16 15 14 13 12 11 10
17
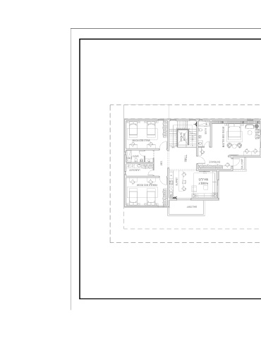
9 BATH
OPEN TO BELOW 6 5 24R x 0.16 23G x 0.28 MASTER BED ROOM
19 18 8 7 FIRE EXTINGUISHER MOUNT
20
21
23 22 4
MALE BED ROOM
3
2
24
UP
25
DOWN
HALL
BATH
DIST. ENTRANCE BALCONY
LAUNDARY
BUFFET TV 70" MAJLIS FAMILY
FEMALE BED ROOM
DP BALCONY
FIRST FLOOR
PORTABLETYPE
A 3
M 0 0 2

