Page 885 - سابقة أعمال ايجي ريفيت السكني
P. 885
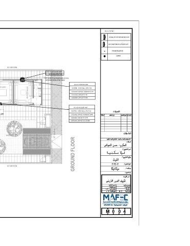
HVAC LEGEND:
HIGH WALL SPLIT AIR CONDITIONER INDOOR UNIT
AIR CONDITIONER OUTDOOR UNIT
TR TON REFREGATION
SLEEVE
ACU 03-IN DOOR UNIT NEIGHBOUR
ACU 01-OUT DOOR UNIT
DOWN 2R x 0.15
SYSTEM HIGH WALL SPLIT DX 1G x 2.00 UP HIGH WALL SPLIT DX
STORE
COOLING CAPACITY24000 BTU/HR 2 1 3" UPVC SLEEVE FROM GROUND FLOOR ( A.C.U.02 )
REFRIGIRANT PIPES/ELECTRIC CABLES
COOLING CAPACITY2 TR
COOLING CAPACITY 7 KW BATH ACU 01-IN DOOR UNIT
16 15 14 13 12 11
10
17
9 GENTLES MAJLIS
18
8 SYSTEM HIGH WALL SPLIT DX
DINING 21 25R x 0.15 24G x 0.28
20 19 7 6 COOLING CAPACITY24000 BTU/HR
DIRTY KITCHEN
ACU 04-IN DOOR UNIT 22 5 4 H.WASH GENTLES MAJLIS
23
3 COOLING CAPACITY2 TR
SYSTEM HIGH WALL SPLIT DX 24 2
25
1 UP COOLING CAPACITY7 KW
COOLING CAPACITY12000 BTU/HR DOWN
COOLING CAPACITY1 TR H.WASH
COOLING CAPACITY3.5 KW BATH ENTRANCE 2 1 ACU 02-IN DOOR UNIT
ENTRANCE DECORATIVE TABLE GENTLES DOWN 1G x 0.90 2R x 0.15 UP SYSTEM HIGH WALL SPLIT DX
ACU 05-IN DOOR UNIT TV 70"
COOLING CAPACITY42000 BTU/HR
SYSTEM HIGH WALL SPLIT DX 2 1 COOLING CAPACITY3.5 TR
COOLING CAPACITY36000 BTU/HR FAMILY ENTRANCE COOLING CAPACITY12.25 KW
NEIGHBOUR
COOLING CAPACITY3 TR FAMILY LIVING GUEST DINING
COOLING CAPACITY10.5 KW DOWN
2R x 0.15 1G x 1.00 2 ST 16.00 m
ACU 06-IN DOOR UNIT 1 GARDEN
GROUND FLOOR
UP
SYSTEM HIGH WALL SPLIT DX GARDEN GARDEN CAR PORT
COOLING CAPACITY24000 BTU/HR
COOLING CAPACITY2 TR
COOLING CAPACITY7 KW
1
2
N NEIGHBOUR
A 3
M 0 0 4

