Page 886 - سابقة أعمال ايجي ريفيت السكني
P. 886
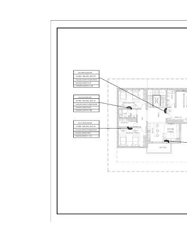
HVAC LEGEND:
HIGH WALL SPLIT AIR CONDITIONER INDOOR UNIT
AIR CONDITIONER OUTDOOR UNIT
TR TON REFREGATION
SLEEVE
ACU 09-IN DOOR UNIT
SYSTEM HIGH WALL SPLIT DX
COOLING CAPACITY12000 BTU/HR
COOLING CAPACITY1TR
COOLING CAPACITY 3.5 KW
16 15 14 13 12 11 10
9
17
ACU10-IN DOOR UNIT 18 8 BATH
19 7
SYSTEM HIGH WALL SPLIT DX 20 21 OPEN TO BELOW 6 5 24R x 0.16 23G x 0.28 MASTER BED ROOM
COOLING CAPACITY24000 BTU/HR MALE BED ROOM 22 23 4 3 ACU 07-IN DOOR UNIT
2
24
25 UP
COOLING CAPACITY2TR DOWN SYSTEM HIGH WALL SPLIT DX
COOLING CAPACITY 7 KW
COOLING CAPACITY48000 BTU/HR
HALL COOLING CAPACITY4 TR
BATH
DIST. ENTRANCE BALCONY COOLING CAPACITY14 KW
ACU 11-IN DOOR UNIT LAUNDARY
SYSTEM HIGH WALL SPLIT DX TV 70"
BUFFET
COOLING CAPACITY24000 BTU/HR MAJLIS
COOLING CAPACITY2TR FEMALE BED ROOM FAMILY
COOLING CAPACITY 7 KW
ACU 8-IN DOOR UNIT
FIRST FLOOR
SYSTEM HIGH WALL SPLIT DX
BALCONY
COOLING CAPACITY30000 BTU/HR
COOLING CAPACITY2.5 TR
COOLING CAPACITY8.75 KW
A 3
M 0 0 5

