Page 187 - ISCIR_2017
P. 187
th
Seminar on Structural Repair and Retrofit Using FRP Technology, 7 October 2004 – EIT Building, Thailand
- Rehabilitation of Earthquake-Damaged and Seismic-Deficient Structures using FRP Technology
APPENDIX A
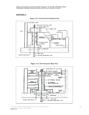
Figure A-1: Test Set-Up for Flexural Test
Figure A-2: Test Set-up for Shear Test
oInnovative Seismic Strengthening System for Concrete Structuresp 185
© 2017 | T Imjai & R. Garcia (Eds.)
Page 9 of 23

