Page 2259 - Foton Workshop Manual - Tunland (AT)
P. 2259
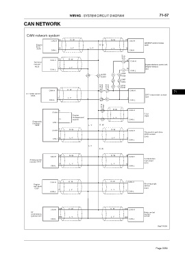
WIRING - SYSTEM CIRCUIT DIAGRAM 71-57
CAN NETWORK
CAN network system
15 RW- RW- 26
CAN-H CAN-H
ABS/ESP control module
Engine RW A006
-
ECU
A024 16 LY- LY- LY- 14
CAN-L CAN-L
A307 E101
B RW-
CAN-H 15 CAN-H
Terminal 3
resistor Engine electronic control unit
A023 C LY- (engine harness)
CAN-L 16 E01
2 CAN-L
A304
18 17 A303 5 6 C103
C203
10 14 C401
D302
C401 D302 D701 Q101 5 6 D701
Q101
CAN-H 6 RW- 16 9 2 CAN-H
AT nodel switch 71
C063 DPF temperature sensor
3 LY- 3 Q01
CAN-L 15 8 CAN-L
C714 P201
RW- 6
3 6 CAN-H
CAN-H T CU
Engine P001
management LY- 2
11 system 7 CAN-L
Diagnostic CAN-L
interface
C005 LY- RW-
6 RW- RW-
CAN-H 8 CAN-H
The electric part-time
4WD module
C040
CAN-L 14 LY- LY- 9 CAN-L
LY-
RW-
CAN-H 34 RW- RW- 16 CAN-H
Combination
Airbag control instrument
module C016 C013
33 LY- LY- 15
CAN-L CAN-L
CAN-H 7 RW- RW- 2 CAN-H
Engine Steering angle
anti-theft sensor
C007 C041
8 LY- LY- 1
CAN-L CAN-L
A18 RW- RW- D19
CAN-H CAN-H
Air Body control
conditioning module
system C021 B18 LY- LY- D20 C0135
CAN-L CAN-L
ftwx711084
Page 2259

