Page 6 - E:\02.Cost Estimation\10.Song Hau Factory\01.Drawings\02.Cad\FACTORY SOHA - 24-01-2017 CAP CONG NGHE GUI IN-Model
P. 6
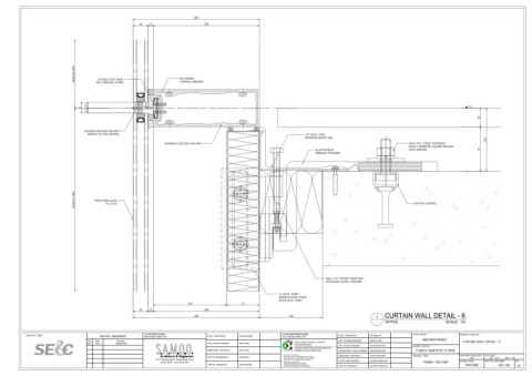
200
24 8 168
MODULE DIM. SELF DRILLING SCREW POLYAMIDE
∅4*20LG FLAT HEAD
THERMAL BREAKER
9.5
17 F.L.
7.5
30
GLAZING SILICONE SEALANT
W/BACK UP ROD SPONGE 1.2T GALV. STEEL
W/WATER PROOF SEAL
100
ASSEMBLY SILICONE SEALANT GALV. ST'L T-BOLT M16X50LG
W/NUT SERRATED SQUARE WASHER
AL.EXTRUSION LOCK WASHER 70
PRIMARY FASTENER
MODULE DIM. THK24 PAIR GLASS CAST-IN CHANNEL
(6+12+6)
GALV. ST'L SOCKET HEAD BOLT
M10X250LG W/NUT WASHER
1.2 GLAV. SHEET
W/INSULATION THK50
W/0.8 GLAV. SHEET
116 52
24 8 168
200 100 1 CURTAIN WALL DETAIL - 6
OFFICE SCALE : 1/2
T Ư V Ấ N T H IẾ T K Ế C H ÍN H T Ư V Ấ N T H IẾ T K Ế Đ ỊA P H Ư Ơ N G DỰ ÁN - PROJECT :
CHỦ ĐẦU TƯ - CLIENT SỬA ĐỔI - AMENDMENT MAIN DESIGN CONSULTANT DUYỆT - APPROVED BY : DO-KWON PARK LOCAL DESIGN CONSULTANT DUYỆT - APPROVED BY : VÕ THANH HÀ TÊN BẢN VẼ - DWG TITLE :
SND HANOI PROJECT
LẦN NGÀY NỘI DUNG GROUP CÔNG TY CỔ PHẦN TƯ VẤN ÐẦU TƯ VÀ THIẾT KẾ QLKT - TECHNICAL MANAGER : ĐẶNG SỸ TIẾN CURTAIN WALL DETAIL - 6
REV DATE DESCRIPTION CNTK - PROJECT MANAGER : MOE JEONG
XÂY DỰNG VIỆT NAM (CDC)
CNTK - PROJECT MANAGER : NGUYỄN ANH HIẾU
ĐỊA ĐIỂM - LOCATION :
VIETNAM INVESTMENT CONSULTING AND CONSTRUCTION
KIỂM BỘ MÔN - CHECKED BY : MOE JEONG C D C J S C . V N DESIGNING JOINT STOCK COMPANY (CDC) TRƯỞNG ĐƠN VỊ - HEAD OF DIVISION : NGUYỄN ANH HIẾU P. XUÂN LA - QUẬN TÂY HỒ - TP. HÀ NỘI
* TRỤ SỞ CHÍNH - HEAD OFFICE : KIỂM BỘ MÔN - CHECKED BY : TRẦN VĂN ĐƯỢNG HẠNG MỤC - ITEMS: HOÀN THÀNH - FINISHED DATE : TỈ LỆ - SCALE :
CHỦ TRÌ - MAIN DESIGNER : SUN JEONG TÒA NHÀ CDC-CIC, 37 LÊ ĐẠI HÀNH, HÀ NỘI, VIỆT NAM A1 : 1/1 A3 : 1/2
CDC-CIC BUILDING , 37 LEDAIHANH STR. , HANOI, VIETNAM 2019
1077, Cheonho-daero, Gangdong-gu, Seoul ĐIỆN THOẠI - TEL : (844) 9760402; FAX: (844) 9763122
CHỦ TRÌ - MAIN DESIGNER : NGUYỄN THANH HOA GIAI ĐOẠN - PHASE : BẢN VẼ SỐ - DWG NUMBER : REV
Korea, 05340. www.samoo.com * CÔNG TY CDCs - CDCs OFFICE : TOWER - TÒA THÁP
67/46L ĐINH TIÊN HOÀNG, TP HỒ CHÍ MINH
THIẾT KẾ - DESIGNED BY : YEO YONG KIM 67/46L DINHTIENHOANG STR, HOCHIMINH CITY TKCS (BD) A65-106 00
ĐIỆN THOẠI - TEL: (848) 8414777; FAX : (848) 8414777 THIẾT KẾ - DESIGNED BY : NGUYỄN THANH HOA

