Page 32 - Demo
P. 32

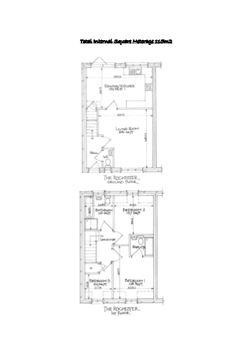
Total Internal Square Meterage 115m2
   

































































































   28   29   30   31   32