Page 8 - Demo
P. 8

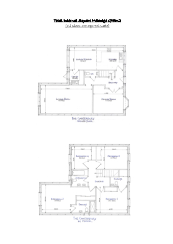
Total Internal Square Meterage 175m2
(all sizes are approximate)
    
































































































   6   7   8   9   10