Page 14 - ALLOY Technical Detail V.2025-2
P. 14
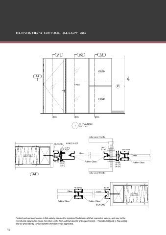
A1 A2 A3
FIXED
A4
FIXED
P
FIXED
- ELEVATION
Scale : NTS
Alloy Lever Handle
SILICONE HINGE H.02P
(A.01) (A.01)
70.01 70.01 40.03=x2
Glass
ROCKWOOL Glass
INSULATION
40.02 40.08 Rubber Glass 40.08 Rubber Glass
(A.14) (A.14)
(A.01) (A.01)
A4 Alloy Lever Handle
40.03=x2 40.02
Glass Glass
ROCKWOOL
INSULATION
Rubber Glass Rubber Glass
SILICONE

