Page 10 - ALLOY Technical Detail V.2025-2
P. 10
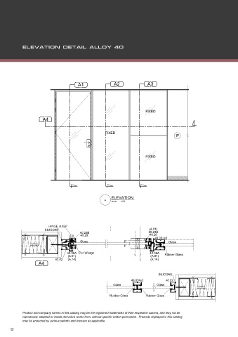
A1 A2 A3
FIXED
A4
FIXED
P
FIXED
- ELEVATION
Scale : NTS
HINGE H.02P
SILICONE (A.01)
40.23B 40.23B
40.20 40.20
40.03=x2
Glass Glass
ROCKWOOL
INSULATION
40.08A Pvc Wedge 40.08A
(A.01) (A.01) Rubber Glass
40.02 (A.14) (A.14)
A4
SILICONE
40.03=x2 40.02
Glass Glass
ROCKWOOL
INSULATION
Rubber Glass Rubber Glass

