Page 12 - ALLOY Technical Detail V.2025-2
P. 12
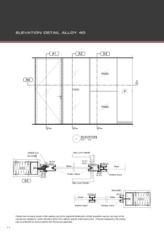
A1 A2 A3
FIXED
A4
FIXED
P
FIXED
- ELEVATION
Scale : NTS
HINGE H.01 Alloy Lever Handle
SILICONE
(A.01) (A.01)
60.01 60.01 40.03=x2
Glass Glass
ROCKWOOL
INSULATION
40.02 40.08
40.08 Rubber Glass (A.01) Rubber Glass
(A.01)
A4
Alloy Lever Handle
SILICONE
40.03=x2 40.02
Glass Glass
ROCKWOOL
INSULATION
Rubber Glass Rubber Glass

