Page 8 - ALLOY Technical Detail V.2025-2
P. 8
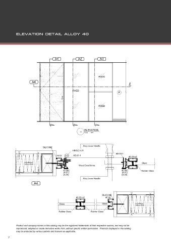
A1 A2 A3
FIXED
A4
FIXED
P
FIXED
- ELEVATION
Scale : NTS
Alloy Lever Handle
SILICONE
HINGE H.01
AD.03-1
40.02 AD.03-1
40.03=x2
ROCKWOOL Glass
INSULATION
Wood Door35mm.
40.08C 40.08C Rubber Glass
(A.01) (A.01)
(A.09) (A.09)
Alloy Lever Handle
A4
SILICONE
40.03=x2 40.02
Glass Glass ROCKWOOL
INSULATION
Rubber Glass Rubber Glass

