Page 22 - ALLOY Technical Detail V.2025-2
P. 22

   











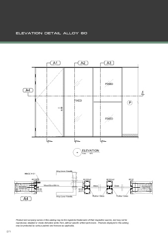
                                       A1                 A2                 A3







                                                                            FIXED

                   A4



                                                      FIXED
                                                                                            P





                                                                            FIXED












                                                       -   ELEVATION
                                                           Scale    :   NTS





                                         Alloy Lever Handle
                  HINGE H.01

                       80.02                                80.03=x2        80.03=x2        80.02

                                Wood Door35mm.                     Glass          Glass
              ROCKWOOL                                                                                ROCKWOOL
               INSULATION                                                                             INSULATION
                           80.08                         80.08
                           (A.01)                        (A.01)
                  A4                     Alloy Lever Handle        Rubber Glass     Rubber Glass
   17   18   19   20   21   22   23   24   25   26   27