Page 25 - ALLOY Technical Detail V.2025-2
P. 25
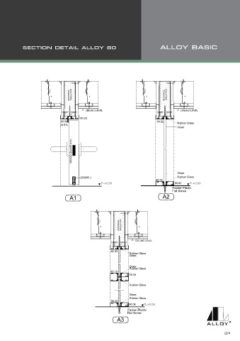
ROCKWOOL INSULATION ROCKWOOL INSULATION
CEILING LEVEL CEILING LEVEL
80.02
80.09 80.02 Rubber Glass
(A.01)
Glass
WOOD Door45 mm.
Glass
(DS200 ) Rubber Glass
80.05
80.06
Packer Plactic
Flat Screw
A1 A2
ROCKWOOL INSULATION
CEILING LEVEL
80.02
Rubber Glass
Glass
Glass
Rubber Glass
80.16
80.06
Rubber Glass
Glass
Rubber Glass
80.05
80.06
Packer Plactic
Flat Screw
A3

