Page 29 - ALLOY Technical Detail V.2025-2
P. 29
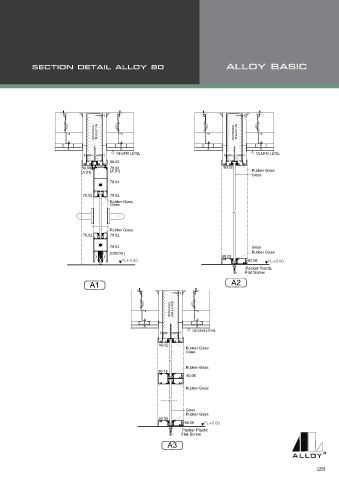
ROCKWOOL INSULATION ROCKWOOL INSULATION
CEILING LEVEL CEILING LEVEL
80.02
80.09 70.06 80.02
(A.01) (A.01) Rubber Glass
Glass
70.04
70.02 70.02
Rubber Glass
Glass
Rubber Glass
70.02 70.02
70.04 Glass
(DS200 ) Rubber Glass
80.05
80.06
Packer Plactic
Flat Screw
A1 A2
ROCKWOOL INSULATION
CEILING LEVEL
80.02
Rubber Glass
Glass
Rubber Glass
80.16
80.06
Rubber Glass
Glass
Rubber Glass
80.05
80.06
Packer Plactic
Flat Screw
A3

