Page 30 - ALLOY Technical Detail V.2025-2
P. 30
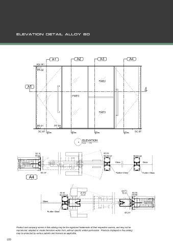
A1 A2 A3 A4
AG-141
PF-02
FIXED
A5
FIXED
FIXED
PF-01 PF-03
DC.07 DC.07
- ELEVATION
Scale : NTS
80.10 80.10
80.02 80.03=x2 80.03=x2
Glass Glass
ROCKWOOL
INSULATION
DC.07 Rubber Glass Rubber Glass
A4
(A.01)
80.10 (A.01) 70.01 80.10
80.03=x2 70.01 80.02
Glass ROCKWOOL
INSULATION
Rubber Glass
DC.07

