Page 26 - ALLOY Technical Detail V.2025-2
P. 26
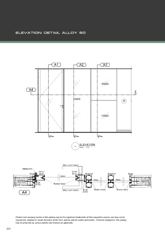
A1 A2 A3
FIXED
A4
FIXED
P
FIXED
- ELEVATION
Scale : NTS
Alloy Lever Handle
HINGE H.01
(A.01) (A.01)
80.02 60.01 60.01 80.03=x2 80.03=x2 80.02
Glass
Glass Glass
ROCKWOOL ROCKWOOL
INSULATION INSULATION
80.08 Rubber Glass
(A.01)
80.08
A4 Alloy Lever Handle (A.01) Rubber Glass Rubber Glass

