Page 28 - ALLOY Technical Detail V.2025-2
P. 28
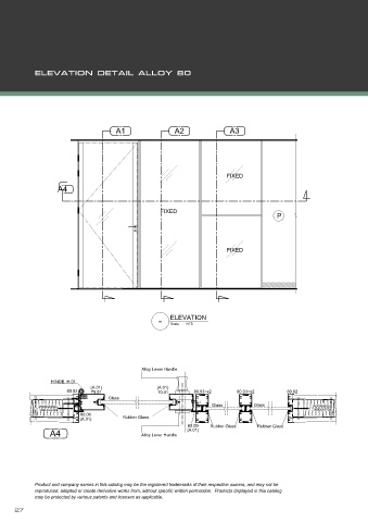
A1 A2 A3
FIXED
A4
FIXED
P
FIXED
- ELEVATION
Scale : NTS
Alloy Lever Handle
HINGE H.01
(A.01) (A.01)
80.02 70.01 70.01 80.03=x2 80.03=x2 80.02
Glass
ROCKWOOL Glass Glass ROCKWOOL
INSULATION INSULATION
80.09
(A.01) Rubber Glass
80.09 Rubber Glass Rubber Glass
A4 Alloy Lever Handle (A.01)

