Page 278 - METRO CORRECTED Binder 2 October 30
P. 278
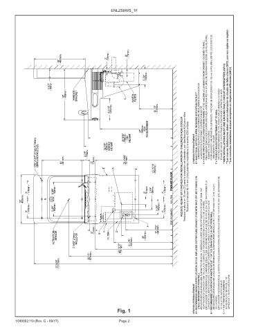
ENLZS8WS_1F
483mm 2" 51mm 3" 76mm
19"
5 7/8" 149mm
3 1/2" 90mm
482mm
19" HANGER BRACKET C WATER FILTER E = INSURE PROPER VENTILATION BY MAINTAINING 6" (152 mm) (MIN.) CLEARANCE FROM CABINET LOUVERS TO WALL. PARA GARANTIZAR LA VENTILACIÓN ADECUADA, MANTENGA 152 mm (6") (MÍN.) DE SEPARACIÓN DESDE LAS REJILLAS DEL POUR ASSURER UNE AÉRATION SUFFISANTE, PRÉVOIR UN DÉGAGEMENT DE 152 mm (6 PO) (MIN.) ENTRE LES ÉVENTS DE **Las nuevas instalaciones deben usar un interruptor de circuito de falla
8 1/16" 205mm 12 1/2" 318mm **NEW INSTALLATIONS MUST USE GROUND FAULT CIRCUIT INTERRUPTER (GFCI) **Les nouvelles installations doivent comporter un disjoncteur différentiel (GFCI)
686mm ADA REQUIREMENT D = ELECTRICAL SUPPLY (3) WIRE RECESSED BOX DUPLEX OUTLET** SUMINISTRO ELÉCTRICO (3) CAJA ENCHUFE DE ALAMBRE SALIDA DÚPLEX ORIFICIOS PARA PERNOS DE 7/16, PARA FIJAR LA UNIDAD A LA PARED TROUS DE VIS DE 7/16 PO POUR LA FIXATION DE L’APPAREIL AU MUR
27" ALIMENTATION ÉLECTRIQUE (3) BOÎTIER ENCASTRÉ
31 5/16" 796mm RIM HEIGHT GABINETE HASTA LA PARED. F = 7/16 BOLT HOLES FOR FASTENING UNIT TO WALL
7/16" X 3/4" (11mm X 19mm) OBROUND HOLES (6) 381mm 2 7/8" 73mm 51mm 32 7/8" 835mm ORIFICE HEIGHT 28 13/16" 731mm LEGEND/LEYENDA/LÉGENDE L’ENCEINTE ET LE MUR.
15"
2"
E A 13 15/16" 354mm REDUCE HEIGHT BY 3 INCHES FOR INSTALLATION OF CHILDREN’S ADA COOLER Reduzca la altura en 76 mm (3") para la instalación del bebedero con clasificación ADA para niños Réduire la hauteur de 76 mm (3 po) pour les installations à la norme ADA enfants
FINISHED FLOOR
178mm 162mm 51mm 3 7/8" 98mm 178mm
7" 6 3/8" 2" 7"
458mm C L
18"
178mm 6 3/8" 162mm 5 3/4" 146mm 178mm
7" 7" PISO ACABADO SOL FINI
F
51mm 2" B E D 17 7/16" 443mm
ACTIVATION SENSOR O 9/32" (7mm) HOLES (9) FILTER 21 7/8" 556mm 19" 483mm A = RECOMMENDED WATER SUPPLY LOCATION 3/8 O.D. UNPLATED COPPER TUBE CONNECT STUB WITH SHUT OFF (BY OTHERS) 3 IN. EMPLACEMENT RECOMMANDÉ DE L’ARRIVÉE D’EAU. TUBE EN CUIVRE NON PLAQUÉ DE 3/8 PO DE DIA. EXT. RACCORDER À LA UBICACIÓN RECOMENDADA DE LA SALIDA DE DESECHOS. ADAPTADOR DE DESAGÜE DE 1-1/14" DE DIÁM. EXT., A 51 mm (2") EMPLACEMENT RECOMMANDÉ DE LA SORTIE D’ÉCOULEMEN
38 1/2" 979mm 28 13/16" 731mm UBICACIÓN RECOMENDADA DEL SUMINISTRO DE AGUA. TUBERÍA DE COBRE SIN REVESTIMIENTO DE 3/8" DE DIÁM. EXT. ADAPTADOR DE CONEXIÓN CON VÁLVULA DE CIERRE (DE TERCEROS) MÁXIMO A 76 mm (3") DE LA PARED. CONDUITE D’ALIMENTATION AVEC UN ROBINET D’ARRÊT (NON FOURNI) À 76 mm (3 PO) MAXIMUM DU MUR
51 9/16" 1310mm B = RECOMMENDED LOCATION FOR WASTE OUTLET 1-1/4" O.D. DRAIN STUB 2 IN. OUT FROM WALL
LEGEND/LEYENDA/LÉGENDE (76mm) MAXIMUM OUT FROM WALL DE LA PARED. 51 mm (2 PO) HORS DU MUR C = 1-1/4" TRAP NOT FURNISHED NO SE INCLUYE SIFÓN DE 1-1/4" SIPHON DE 1-1/4 PO NON FOURNI
Fig. 1
1000002119 (Rev. G - 09/17) Page 2

