Page 151 - سابقة أعمال ايجي ريفيت السكني
P. 151
DP
CO2
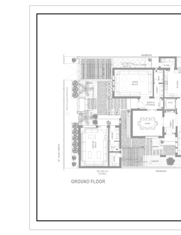
NIGHBOUR
227.887 m 2 North Elevation STORE
(43.60 %)
DP
BATH
LADIES N
GARDEN
MAJLIS H.WASH KITCHEN GUEST ROOM
West Elevation With Fence GARDEN West Elevation Without fence ENTRANCE MIRROR ELEV. 26 DOWN DOWN 25 25 24 24 23 23 25R x 0.16 22 22 21 21 20 20 19 19 18 18 17 17 16 16 15 CO2 15 14 14 13 13
GENTLES
25R x 0.16
24G x 0.28
10
WALL WATERFALL DINING MIRROR FAMILY ENTRANCE UP UP 1 2 3 4 5 24G x 0.28 6 7 TV 70" 8 9 BATH 11 12
H.WASH FAMILY LIVING NIGHBOUR
ST. 16.00 m WIDTH GENTLES MAJLIS BATH STORE EXTERNAL SEAT GARDEN
GARDEN
South Elevation
58.140 m 2 NIGHBOUR
(11.10%)
GROUND FLOOR
A 3
PORTABLETYPE
M 0 0 1

