Page 156 - سابقة أعمال ايجي ريفيت السكني
P. 156
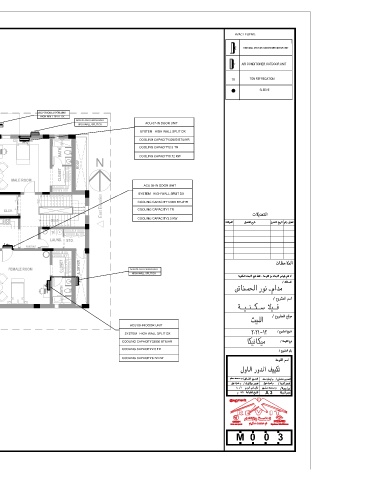
HVAC LEGEND:
HIGH WALL SPLIT AIR CONDITIONER INDOOR UNIT
AIR CONDITIONER OUTDOOR UNIT
ACU 10-IN DOOR UNIT
SYSTEM HIGH WALL SPLIT DX
TR TON REFREGATION
COOLING CAPACITY32000 BTU/HR
COOLING CAPACITY2.5 TR SLEEVE
COOLING CAPACITY8.72 KW
ACU 02-OUT DOOR UNIT
ACU 10-OUT DOOR UNIT HIGH WALL SPLIT DX
HIGH WALL SPLIT DX ACU 07-OUT DOOR UNIT
ACU 11-IN DOOR UNIT 248.160 m 2 2 HIGH WALL SPLIT DX ACU 07-IN DOOR UNIT
(47.72 %) North Elevation SYSTEM HIGH WALL SPLIT DX
SYSTEM HIGH WALL SPLIT DX
COOLING CAPACITY32000 BTU/HR
COOLING CAPACITY12000 BTU/HR
10 7
COOLING CAPACITY2.5 TR
COOLING CAPACITY1 TR
MASTER MIRROR BATH
COOLING CAPACITY3.5 KW BED ROOM MAKEUP BATH COOLING CAPACITY8.72 KW
ROOF N
West Elevation With Fence 12 PORTRAIT 25 24 23 22 21 20 19 18 17 16 15
ACU 12-IN DOOR UNIT 11 CLOSET MALE ROOM CLOSET
SYSTEM HIGH WALL SPLIT DX TV 55" ACU 08-IN DOOR UNIT
COOLING CAPACITY12000 BTU/HR West Elevation Without fence SYSTEM HIGH WALL SPLIT DX
COOLING CAPACITY1 TR ENTRANCE MIRROR DOWN COOLING CAPACITY12000 BTU/HR
COOLING CAPACITY3.5 KW PRIVATE SEAT OFFICE SHOES STO. ELEV. 14 13 12 East Elevation COOLING CAPACITY1 TR
25R x 0.16 COOLING CAPACITY3.5 KW
13 TV 50" UP 1 2 3 4 24G x 0.28 5 6 7 8 9 10 11
14 W D
ACU 13-IN DOOR UNIT
CHILD LAUND.
SYSTEM HIGH WALL SPLIT DX BED ROOM FAMILY LIVING 8 PORTRAIT STO.
BATH
COOLING CAPACITY12000 BTU/HR
CLOSET
COOLING CAPACITY1 TR
15
ACU 09-OUT DOOR UNIT
COOLING CAPACITY3.5 KW FEMALE ROOM ROOF & DRYER HIGH WALL SPLIT DX
9
BATH
ACU 14-IN DOOR UNIT
SYSTEM HIGH WALL SPLIT DX
COOLING CAPACITY12000 BTU/HR
ACU 06-OUT DOOR UNIT
COOLING CAPACITY1 TR HIGH WALL SPLIT DX
South Elevation
COOLING CAPACITY3.5 KW
6 ACU 09-IN DOOR UNIT
SYSTEM HIGH WALL SPLIT DX
FIRST FLOOR COOLING CAPACITY32000 BTU/HR
COOLING CAPACITY2.5 TR
ACU 15-IN DOOR UNIT
COOLING CAPACITY8.72 KW
SYSTEM HIGH WALL SPLIT DX
COOLING CAPACITY24000 BTU/HR
COOLING CAPACITY2 TR
COOLING CAPACITY2 KW
A 3
M 0 0 3

