Page 157 - سابقة أعمال ايجي ريفيت السكني
P. 157
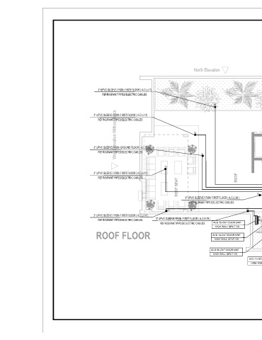
HVAC LEGEND:
HIGH WALL SPLIT AIR CONDITIONER INDOOR UNIT
AIR CONDITIONER OUTDOOR UNIT
TR TON REFREGATION
SLEEVE
North Elevation
ROOF GARDEN
3" UPVC SLEEVE FROM FIRST FLOOR ( A.C.U.11)
REFRIGIRANT PIPES/ELECTRIC CABLES
11
West Elevation Without fence 12
3" UPVC SLEEVE FROM FIRST FLOOR ( A.C.U.12)
REFRIGIRANT PIPES/ELECTRIC CABLES ROOF
3" UPVC SLEEVE FROM GROUND FLOOR ( A.C.U.05 ) East Elevation
REFRIGIRANT PIPES/ELECTRIC CABLES 5 ELEV.
13
3" UPVC SLEEVE FROM FIRST FLOOR ( A.C.U.13 )
REFRIGIRANT PIPES/ELECTRIC CABLES ROOF
ROOF SEAT
3" UPVC SLEEVE FROM FIRST FLOOR ( A.C.U.08 ) 8
REFRIGIRANT PIPES/ELECTRIC CABLES ROOF
15
14
3" UPVC SLEEVE FROM FIRST FLOOR ( A.C.U.14 ) 15 ROOF GARDEN 5 ACU 11-OUT DOOR UNIT
3" UPVC SLEEVE FROM FIRST FLOOR ( A.C.U.15 ) 14 8 13 HIGH WALL SPLIT DX
REFRIGIRANT PIPES/ELECTRIC CABLES
REFRIGIRANT PIPES/ELECTRIC CABLES ACU 15-OUT DOOR UNIT 11
HIGH WALL SPLIT DX
ROOF FLOOR ACU 14-OUT DOOR UNIT ACU 12-OUT DOOR UNIT
HIGH WALL SPLIT DX 12 HIGH WALL SPLIT DX
ACU 08-OUT DOOR UNIT
HIGH WALL SPLIT DX
ACU 13-OUT DOOR UNIT
HIGH WALL SPLIT DX ACU 05-OUT DOOR UNIT
HIGH WALL SPLIT DX
A 3
M 0 0 4

