Page 153 - سابقة أعمال ايجي ريفيت السكني
P. 153
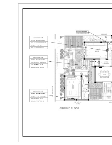
HVAC LEGEND:
HIGH WALL SPLIT AIR CONDITIONER INDOOR UNIT
AIR CONDITIONER OUTDOOR UNIT
TR TON REFREGATION
SLEEVE
ACU 04-OUT DOOR UNIT
HIGH WALL SPLIT DX
NIGHBOUR
ACU 04-IN DOOR UNIT
227.887 m 2
SYSTEM HIGH WALL SPLIT DX (43.60 %) North Elevation STORE ACU 01-IN DOOR UNIT
COOLING CAPACITY40000 BTU/HR SYSTEM HIGH WALL SPLIT DX
COOLING CAPACITY3.3 TR COOLING CAPACITY18000 BTU/HR
BATH
COOLING CAPACITY11.5 KW COOLING CAPACITY1.5 TR
LADIES 4 COOLING CAPACITY2 KW
GARDEN 1 N
MAJLIS KITCHEN GUEST ROOM
ACU 05-IN DOOR UNIT H.WASH 2
ACU 01-OUT DOOR UNIT
SYSTEM HIGH WALL SPLIT DX West Elevation With Fence 26 25 25 24 24 23 23 22 22 21 21 20 20 19 19 18 18 17 17 16 16 15 HIGH WALL SPLIT DX
GENTLES
COOLING CAPACITY30000 BTU/HR GARDEN West Elevation Without fence AIR CURTAIN L : 2 M ENTRANCE MIRROR ELEV. DOWN DOWN 15 East Elevation
COOLING CAPACITY2.5 TR 14 14 13 13
25R x 0.16
COOLING CAPACITY8.75 KW 5 MIRROR 1 UP UP 2 3 4 5 25R x 0.16 6 7 8 9 10 11 12 ACU 02-IN DOOR UNIT
24G x 0.28
24G x 0.28
WALL WATERFALL DINING BATH SYSTEM CASSATE CELLING SPLIT DX
COOLING CAPACITY24000 BTU/HR
5 FAMILY ENTRANCE COOLING CAPACITY2 TR
TV 70" NIGHBOUR COOLING CAPACITY7 KW
H.WASH FAMILY LIVING
AIR CURTAIN L : 2 M
3 HIGH WALL SPLIT DX
ACU 03-OUT DOOR UNIT
GENTLES
MAJLIS
ST. 16.00 m WIDTH ACU 03-IN DOOR UNIT
ACU 06-IN DOOR UNIT BATH GARDEN
SYSTEM HIGH WALL SPLIT DX
COOLING CAPACITY42000 BTU/HR STORE EXTERNAL SEAT GARDEN SYSTEM HIGH WALL SPLIT DX
South Elevation
6 COOLING CAPACITY36000 BTU/HR
COOLING CAPACITY3.5 TR
COOLING CAPACITY3TR
COOLING CAPACITY12.25 KW
58.140 m 2 NIGHBOUR COOLING CAPACITY10.5 KW
(11.10%)
GROUND FLOOR
A 3
M 0 0 2

