Page 641 - سابقة أعمال ايجي ريفيت السكني
P. 641
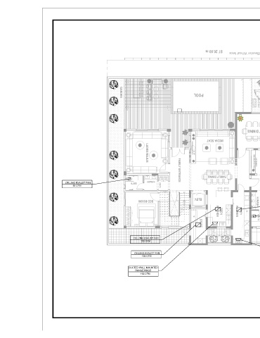
CELLING EXAUST FAN
louvre
DUCTED WALL MOUNTED
RANGE HOOD
ST 20.00 m
West Elevation Without fence
2 1 GARDEN West Elevation CAR PORT
POOL
GARDEN
GUEST DINING
BUFFET
MEDIA SEAT
2 SEAT 1 GARDEN South Elevation
2 1
TV 70"
LADIES MAJLIS
GENTLES ENTRANCE
ENTRANCE
DECORATIVE TABLE
CELLING EXAUST FAN BATH H.WASH FAMILY ENTRANCE FAMILY DINING PORTRAIT
50 CFM ABAYA
DOWN DOWN GENTLES MAJLIS CELLING EXAUST FAN
25 25 2 2 UP UP ST 15.00 m 100 CFM
24 24 3 3
23 23 4 4 ELEV.
22 22 5 5 H.WASH
BED ROOM
21 21 6 6 23G x 0.28 23G x 0.28 24R x 0.16 24R x 0.16
20 20 7 7
19 19 8 8
18 18 9 9 KITCHEN OPEN KITCHEN DIRTY
17 17 10 10
16 16 11 11
15 15 14 14 13 13 12 12 BATH CELLING EXAUST FAN
50 CFM
GARDEN
STORE
CELLING EXAUST FAN
100 CFM
DUCTED WALL MOUNTED
CELLING EXAUST FAN RANGE HOOD
100 CFM
100 CFM
DUCTED WALL MOUNTED
RANGE HOOD
100 CFM
A 3
M 0 1 0

