Page 637 - سابقة أعمال ايجي ريفيت السكني
P. 637
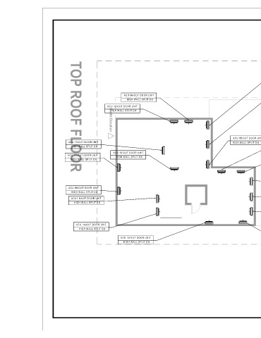
HVAC LEGEND:
HIGH WALL SPLIT AIR CONDITIONER INDOOR UNIT
AIR CONDITIONER OUTDOOR UNIT
TR TON REFREGATION
SLEEVE
ACU 09-OUT DOOR UNIT
HIGH WALL SPLIT DX
ACU 01-OUT DOOR UNIT
HIGH WALL SPLIT DX
ACU 06-OUT DOOR UNIT
HIGH WALL SPLIT DX
ACU 12-OUT DOOR UNIT
HIGH WALL SPLIT DX
South Elevation
ACU 05-OUT DOOR UNIT
ACU 13-OUT DOOR UNIT HIGH WALL SPLIT DX ACU 10-OUT DOOR UNIT
HIGH WALL SPLIT DX
HIGH WALL SPLIT DX
ACU 16-OUT DOOR UNIT
ACU 17-OUT DOOR UNIT ACU 02-OUT DOOR UNIT
HIGH WALL SPLIT DX
HIGH WALL SPLIT DX HIGH WALL SPLIT DX
TOP ROOF FLOOR
ACU 03-OUT DOOR UNIT
HIGH WALL SPLIT DX
ACU 06-OUT DOOR UNIT
HIGH WALL SPLIT DX
ACU 07-OUT DOOR UNIT
ACU1 8-OUT DOOR UNIT
HIGH WALL SPLIT DX
HIGH WALL SPLIT DX
ACU 11-OUT DOOR UNIT
HIGH WALL SPLIT DX
ACU 14-OUT DOOR UNIT
HIGH WALL SPLIT DX
ACU 15-OUT DOOR UNIT
HIGH WALL SPLIT DX
ACU04-OUT DOOR UNIT
HIGH WALL SPLIT DX
A 3
M 0 0 8

