Page 633 - سابقة أعمال ايجي ريفيت السكني
P. 633
HVAC LEGEND:
HIGH WALL SPLIT AIR CONDITIONER INDOOR UNIT
AIR CONDITIONER OUTDOOR UNIT
TR TON REFREGATION
SLEEVE
ROOF FLOOR
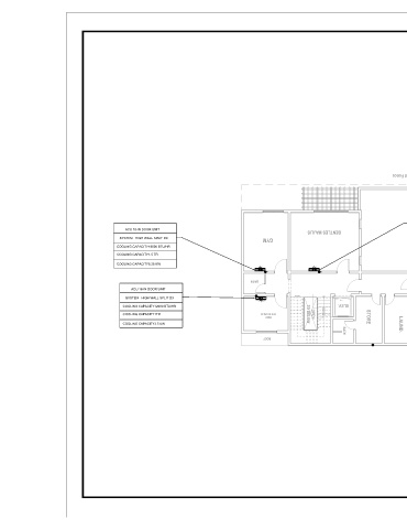
ACU16-IN DOOR UNIT West Elevation Without Fence
SYSTEM HIGH WALL SPLIT DX
ACU 18-IN DOOR UNIT GENTLES MAJLIS
COOLING CAPACITY30000 BTU/HR
SYSTEM HIGH WALL SPLIT DX GYM
COOLING CAPACITY2.5 TR
COOLING CAPACITY18000 BTU/HR
COOLING CAPACITY8.75 KW
COOLING CAPACITY1.5 TR ROOF
COOLING CAPACITY5.25 KW
18 16
ACU 18-IN DOOR UNIT BATH
DOWN
SYSTEM HIGH WALL SPLIT DX 25 2 UP
19
24 3
COOLING CAPACITY12000 BTU/HR 23 4 ELEV.
22 5
21 23G x 0.28 24R x 0.16
COOLING CAPACITY1TR TO BELOW OPEN 6
20 7 STORE
BED ROOM #2
MALE
19 8
COOLING CAPACITY3.5 KW 18 9
17 10 LAUND.
16 11
15 14 13 12 BATH
ROOF
A 3
M 0 0 6

