Page 630 - سابقة أعمال ايجي ريفيت السكني
P. 630
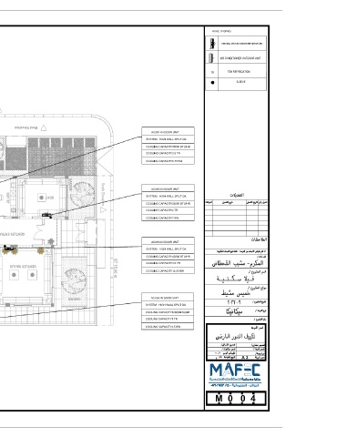
HVAC LEGEND:
HIGH WALL SPLIT AIR CONDITIONER INDOOR UNIT
AIR CONDITIONER OUTDOOR UNIT
TR TON REFREGATION
SLEEVE
ACU 05-IN DOOR UNIT ST 20.00 m West Elevation Without fence
SYSTEM HIGH WALL SPLIT DX
COOLING CAPACITY42000 BTU/HR West Elevation
COOLING CAPACITY3.5TR ACU01-IN DOOR UNIT
COOLING CAPACITY12.25 KW 2 1 SYSTEM HIGH WALL SPLIT DX
GARDEN
COOLING CAPACITY30000 BTU/HR
COOLING CAPACITY2.5 TR
POOL
COOLING CAPACITY8.75 KW
GARDEN
CAR PORT
ACU 06-IN DOOR UNIT
SYSTEM HIGH WALL SPLIT DX GARDEN
COOLING CAPACITY36000 BTU/HR ACU02-IN DOOR UNIT
COOLING CAPACITY3TR GUEST DINING SEAT South Elevation SYSTEM HIGH WALL SPLIT DX
1 BUFFET
COOLING CAPACITY10.5 KW COOLING CAPACITY24000 BTU/HR
MEDIA SEAT
5 COOLING CAPACITY2 TR
6
2 COOLING CAPACITY7 KW
2 1 2 1
TV 70"
LADIES MAJLIS
ACU 07-IN DOOR UNIT FAMILY ENTRANCE DECORATIVE TABLE ENTRANCE GENTLES ENTRANCE ACU03-IN DOOR UNIT
3
SYSTEM HIGH WALL SPLIT DX FAMILY DINING SYSTEM HIGH WALL SPLIT DX
COOLING CAPACITY12000 BTU/HR BATH H.WASH ABAYA PORTRAIT COOLING CAPACITY42000 BTU/HR
COOLING CAPACITY1TR COOLING CAPACITY3.5 TR
6 DOWN DOWN UP UP GENTLES MAJLIS
25 25 2 2 ST 15.00 m
COOLING CAPACITY3.5 KW 24 24 3 3 COOLING CAPACITY12.25 KW
23 23 4 4 ELEV.
22 22 5 5 H.WASH
21 21 6 6 23G x 0.28 23G x 0.28 24R x 0.16 24R x 0.16
BED ROOM
20 20 7 7
19 19
8 8
7
18 18 9 9 KITCHEN OPEN KITCHEN DIRTY
17 17 10 10
16 16 11 11
15 15 14 14 13 13 12 12 BATH
ACU04-IN DOOR UNIT
GARDEN
ACU 08-IN DOOR UNIT STORE SYSTEM HIGH WALL SPLIT DX
SYSTEM HIGH WALL SPLIT DX COOLING CAPACITY12000 BTU/HR
COOLING CAPACITY12000 BTU/HR COOLING CAPACITY1 TR
4
COOLING CAPACITY1TR COOLING CAPACITY3.5 KW
COOLING CAPACITY3.5 KW
A 3
M 0 0 4

