Page 625 - سابقة أعمال ايجي ريفيت السكني
P. 625
co2
DP
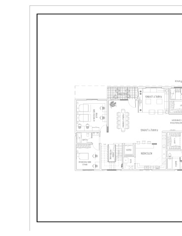
FIRST FLOOR
West Elevation Without Fence
FIRE EXTINGUISHER MOUNT
BALCONEY
BATH
BED ROOM
FAMILY LIVING
FEMALE
TV 70"
CLOSET
BATH BED ROOM #1 MALE FAMILY DINING FAMILY LIVING CLOSET PORTRAIT CORRIDOR DISTRIBUTION ENTRANCE PORTRAIT MASTER BED ROOM BALCONY
DOWN DOWN UP UP
25 25 2 2
24 24 3 3
23 23 4 4 ELEV. 309.176 m
22 22 5 5
21 21 6 6 23G x 0.28 23G x 0.28 24R x 0.16 24R x 0.16 KITCHEN
20 20 TO BELOW OPEN 7 7
19 19 8 8 MIRROR 2
18 18 9 9
17 17 10 10
16 16 11 11 STO.
BED ROOM #2
15 15 14 14 13 13 12 12 co2 BATH
MALE
PORTABLE TYPE
A 3
M 0 0 2

