Page 623 - سابقة أعمال ايجي ريفيت السكني
P. 623
co2
DP
ST 20.00 m
West Elevation Without fence
2 1 GARDEN West Elevation
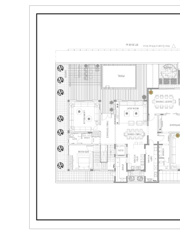
POOL
GARDEN
CAR PORT
FIRE EXTINGUISHER MOUNT
GARDEN
GUEST DINING
BUFFET
South Elevation
MEDIA SEAT
2 SEAT 1
2 1
TV 70"
LADIES MAJLIS
GENTLES ENTRANCE
ENTRANCE
DECORATIVE TABLE
FAMILY ENTRANCE
H.WASH
BATH
ABAYA
DOWN DOWN UP UP FAMILY DINING PORTRAIT GENTLES MAJLIS
25 25 2 2 ST 15.00 m
24 24 3 3
23 23 4 4 ELEV.
22 22 5 5
BED ROOM
21 21 6 6 23G x 0.28 23G x 0.28 24R x 0.16 24R x 0.16 H.WASH
20 20 7 7
19 19 8 8
18 18 9 9 KITCHEN OPEN KITCHEN DIRTY
17 17 10 10
16 16 11 11
15 15 14 14 13 13 12 12 co2 STORE BATH GARDEN
DP
PORTABLE TYPE
A 3
M 0 0 1

