Page 632 - سابقة أعمال ايجي ريفيت السكني
P. 632
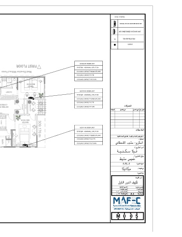
HVAC LEGEND:
HIGH WALL SPLIT AIR CONDITIONER INDOOR UNIT
AIR CONDITIONER OUTDOOR UNIT
TR TON REFREGATION
SLEEVE
ACU09-IN DOOR UNIT
ACU 12-IN DOOR UNIT FIRST FLOOR SYSTEM HIGH WALL SPLIT DX
SYSTEM HIGH WALL SPLIT DX West Elevation Without Fence COOLING CAPACITY36000 BTU/HR
COOLING CAPACITY18000 BTU/HR COOLING CAPACITY3 TR
COOLING CAPACITY1.5TR COOLING CAPACITY10.5 KW
COOLING CAPACITY5.25 KW BALCONEY FAMILY LIVING BATH BED ROOM
9 FEMALE
ACU10-IN DOOR UNIT
TV 70"
CLOSET
SYSTEM HIGH WALL SPLIT DX
12
10 COOLING CAPACITY24000 BTU/HR
COOLING CAPACITY2 TR
MALE
13 FAMILY DINING CORRIDOR DISTRIBUTION ENTRANCE PORTRAIT COOLING CAPACITY7 KW
BED ROOM #1
ACU 13-IN DOOR UNIT BALCONY
SYSTEM HIGH WALL SPLIT DX FAMILY LIVING PORTRAIT
COOLING CAPACITY36000 BTU/HR
COOLING CAPACITY3TR BATH CLOSET MASTER BED ROOM
COOLING CAPACITY10.5 KW DOWN DOWN UP UP
25 25 2 2
24 24 3 3 ACU11-IN DOOR UNIT
23 23 4 4 ELEV. 309.176 m
22 22
SYSTEM HIGH WALL SPLIT DX
5 5
21 21 6 6 23G x 0.28 23G x 0.28 24R x 0.16 24R x 0.16 KITCHEN
20 20 OPEN 15
14 TO BELOW 7 7 MIRROR 2
19 19 8 8 COOLING CAPACITY30000 BTU/HR
ACU 14-IN DOOR UNIT 18 18 9 9
17 17 10 10 COOLING CAPACITY2.5 TR
16 16 11 11 STO.
SYSTEM HIGH WALL SPLIT DX BED ROOM #2 15 15 14 14 13 13 12 12 BATH
COOLING CAPACITY8.75 KW
MALE
COOLING CAPACITY12000 BTU/HR
11
COOLING CAPACITY1TR
COOLING CAPACITY3.5 KW
ACU 15-IN DOOR UNIT
SYSTEM HIGH WALL SPLIT DX
COOLING CAPACITY30000 BTU/HR
COOLING CAPACITY2.5TR
COOLING CAPACITY10.5 KW
A 3
M 0 0 5

