Page 2236 - Workshop Manual - Tunland (2017)
P. 2236
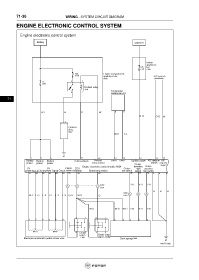
71-36 WIRING - SYSTEM CIRCUIT DIAGRAM
ENGINE ELECTRONIC CONTROL SYSTEM
Engine electronic control system
Battery ON/START
Indoor
appliance
F25 box
7.5A C037
F29 Engine compartment
125A appliance box A/C system
A020
F5 3 1
30A
Preheat relay
A19
5 2 Termination
resistance
E016
71
R-Y B G W B C
R-Br O-G Br
1
Preheat
plug
A027
W-R Y-L
A1
1 3 5 21 46 14 15 41 11 27
Battery Battery Battery ECM feedback Preheat CAN-H CAN-L Ignition power A/C dedium A/C
power power power relay control Cruise switch request
Engine electronic control module A024 decelera Cruise siganl
5V 5V Clutch ECU Cruise -tion accelera
power SignalCircuit power Signal Circuit switch feedback Brake lamp switch set switch switch -tion switch
57 44 56 42 43 55 39 29 52 26 37 24 2 4 6
3 2 4 A302 Y-B V-R P-B
C101
B B B
A302 7 6 5
W-Y L-O L-P Y-L L-Y L-V G-B W-O O C101
W-O W-O W-O Y-B V-R P-B
3 1 3 1
1 2 3 6 5 4 5 8 4 7 6
APS1 APS2 4 Clutch 2 4 2
switch Brake lamp
Electronic accelerator pedal sensor A026 C001 switch C004 Clock spring C009
A3
ftwx711092

