Page 2305 - Workshop Manual - Tunland (2017)
P. 2305

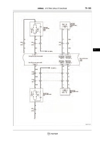
WIRING - SYSTEM CIRCUIT DIAGRAM                           71-105





























                                                                                                                     71
   2300   2301   2302   2303   2304   2305   2306   2307   2308   2309   2310