Page 2317 - Workshop Manual - Tunland (2017)
P. 2317

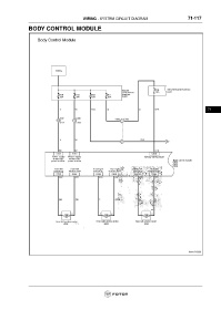
WIRING - SYSTEM CIRCUIT DIAGRAM                           71-117

                 BODY CONTROL MODULE


























                                                                                                                     71
   2312   2313   2314   2315   2316   2317   2318   2319   2320   2321   2322