Page 31 - Exlar - TRITEX linear and rotary electric actuation
P. 31

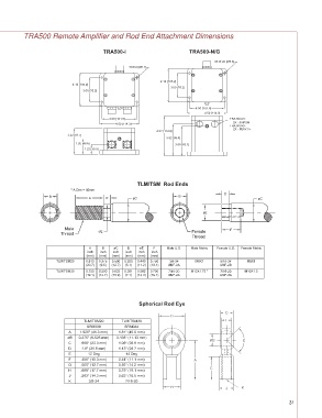
TRA500 Remote Amplifi er and Rod End Attachment Dimensions


                                        TRA500-I                         TRA500-N/G





























                                                           TLM/TSM  Rod Ends


























                                                      Spherical Rod Eye






















                                                                                                               31
   26   27   28   29   30   31   32   33   34   35   36