Page 32 - Exlar - TRITEX linear and rotary electric actuation
P. 32

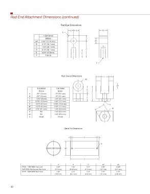
Rod End Attachment Dimensions (continued)





















































































          32
   27   28   29   30   31   32   33   34   35   36